PNH Properties specialise in the process of assembling sites as well as obtaining the necessary planning permission for both residential and commercial developments. PNH deals with all issues associated with land assembly, contaminated land, brownfield sites, strategic land, complex planning applications and joint-ventures with major PLC house builders.
If you would like to enquire about available properties or have property/land you think we might be interested in buying, please call our land department, on 01428 751035 or email admin@pnhproperties.com.
Examples of PNH’s Varied Land Applications
GOSDEN GREEN NURSERIES, EMSWORTH
Proposed development of 5 barn style buildings, set within a landscaped environment for employment uses within Classes E(g) (office, research & development and light industrial uses) with access, parking and landscaping.
BROAD ROAD, HAMBROOK
A 3.2 acre site is located to the rear of Flat Farm, Hambrook. Outline planning for 30 dwellings gained for a mix of two, three and four bed properties, with views over open farmland towards Chichester Cathedral.
MORTIMERS FARM
11 unit farm development in Fair Oak comprising of a mixture of two, three and four bedroom dwellings, part conversion and part new build.
COOKS LANE, SOUTHBOURNE
Planning obtained on a 3.4 acre site for a mix of two, three and four bed properties inc 2 Bungalows – Total of 40 dwellings.
PULENS LANE
Resolution to Grant obtained from SDNP for 17 residential dwellings.
FURZELEY VILLAGE, DENMEAD
We are promoting a 50 acre strategic site through the local plan led process for a housing development of up to 350 homes.
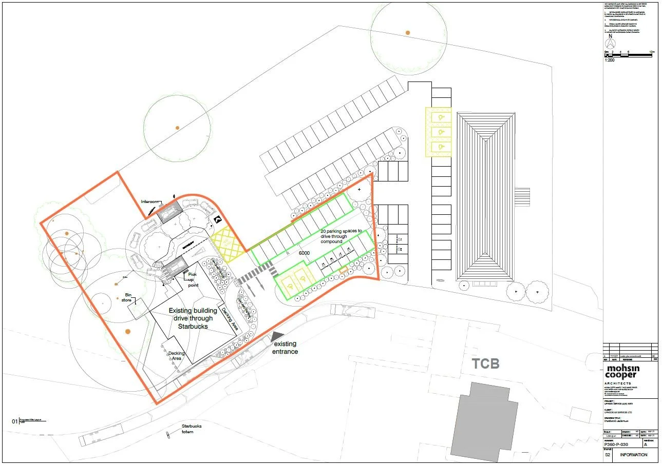
LIPHOOK A3 SERVICES
STARBUCKS DRIVE-THRU
Planning gained to create a drive-thru facility for Starbucks to coincide with their full internal refit of the restaurant.
LIPHOOK A3 SERVICES
MCDONALD’S RESTAURANT WITH DRIVE-THRU
0.7 acre site on which planning has been granted for the demolition of the redundant Travelodge building and construction of a McDonald’s restaurant with drive-thru. This McDonald’s will employ more than 65 full and part time staff and have a customer seating area to accommodate 97 covers.
